Office for sale in 8550 ZWEVEGEM

Description

Park Apart is in a prime location in Zwevegem and is located along the Bekaertstraat with an easy connection to the E17. This strategic location ensures easy accessibility and provides an excellent base for the entire region.
The immediate area is characterized by its many business developments in a zone for mixed regional business parks.
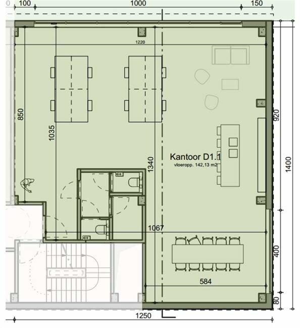
The new 'PARK APART' will be the base for approximately 22 SME units and an office building with finished spaces from 142 m² to 876 m².
This proximity to various business sites therefore creates an economic dynamic where the focus is mainly on activity in warehouses and/or offices.
In Park Apart we bring together progressive companies with a focus on design.
Delivery is scheduled for Q4 2024.

Availabilities

  • APART PARK

    Floor Unit Type floor area Availability
    Floor 1 D1.1 Office 142 m² After delivery
    Floor 1 D1.1 Parking space 4 pl After delivery
    Floor 3 D3.1 Office 142 m² After delivery
    Floor 3 D3.1 Parking space 5 pl After delivery

    Office

    Floor 1
    142 m²
    Floor 1 D1.1 Office 142 m² After delivery

    Parking space

    Floor 1
    4 pl
    Floor 1 D1.1 Parking space 4 pl After delivery

    Office

    Floor 3
    142 m²
    Floor 3 D3.1 Office 142 m² After delivery

    Parking space

    Floor 3
    5 pl
    Floor 3 D3.1 Parking space 5 pl After delivery

Similar properties

office for sale

office

Blokkestraat 41, 8550 ZWEVEGEM

FOR SALE —from 195 m² until 2352 m²

Meer info
office for sale

office

WALLE 111-113, 8500 KORTRIJK

FOR SALE —from 340 m² until 737 m²

Meer info
office for sale

office

Oude Vestingstraat 16-18, 8500 KORTRIJK

FOR SALE —154 m² Available

Meer info