Industrie te huur in 2070 BEVEREN-KRUIBEKE-ZWIJNDRECHT

Beschrijving

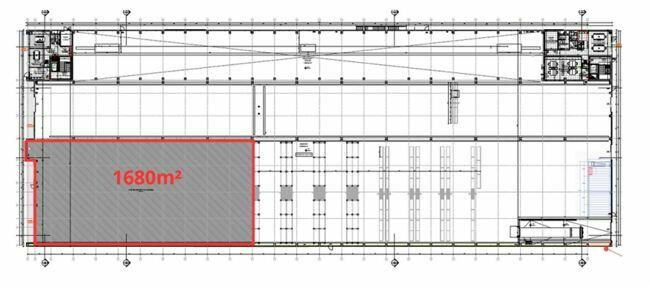
Nieuwbouw magazijn en kantoren te huur nabij Antwerpen, ideaal voor bedrijven die een moderne en duurzame locatie zoeken. Het complex omvat circa 585 m² kantoren boven een magazijn van ongeveer 1.680 m², met een gemeenschappelijke inkom, privatief sanitair en terras. De casco landschapskantoren zijn voorzien van vloerverwarming en plafondunits. Het magazijn beschikt over een vrije hoogte van circa 10 meter, een eigen sectionale poort en verwarming via warmtepompen. Parkeerplaatsen en laadpunten voor elektrische voertuigen zijn beschikbaar. Dankzij 1,2 MWp zonnepanelen op de site wordt groene stroom aangeboden tegen een gunstig tarief. De ligging is strategisch met directe aansluiting op autosnelwegen richting Antwerpen, Brussel en Nederland en een snelle verbinding met de haven van Antwerpen, wat deze locatie perfect maakt voor logistieke en distributieactiviteiten. Neem contact op voor meer informatie of een bezichtiging.

Beschikbaarheden

  • NIEUWE WEG 1 BEVEREN-KRUIBEKE-ZWIJNDRECHT

    Verdieping Unit Type Oppervlakte Beschikbaarheid
    Gelijkvloers Magazijn 1680 m² Onmiddellijk
    Verdieping 1 Kantoor 585 m² Onmiddellijk

    Magazijn

    Gelijkvloers
    1680 m²
    Gelijkvloers Magazijn 1680 m² Onmiddellijk

    Kantoor

    Verdieping 1
    585 m²
    Verdieping 1 Kantoor 585 m² Onmiddellijk

Gelijkaardige panden

nieuw

industrie te huur

industrie

Vitshoekstraat 10, 2070 BEVEREN-KRUIBEKE-ZWIJNDRECHT

TE HUUR —vanaf 510 m² tot 3510 m²

Meer info

nieuw

industrie te huur

industrie

Baarbeek 2, 2070 BEVEREN-KRUIBEKE-ZWIJNDRECHT

TE HUUR —vanaf 731 m² tot 12688 m²

Meer info
industrie te huur

industrie

Kasteleinstraat 13A, 9150 KRUIBEKE

TE HUUR —vanaf 158 m² tot 946 m²

Meer info