Description
Situé dans le port d'Anvers, ce bâtiment industriel spacieux offre de grandes opportunités aux entreprises à la recherche d'un emplacement stratégique. Conçu dans un souci de fonctionnalité et d'efficacité, le bâtiment offre un vaste espace pour la logistique et les activités productives.
Parmi les principales caractéristiques, citons l'espace intérieur vaste et ouvert, idéal pour le stockage et le traitement des matériaux. Les hauts plafonds et les larges portes d'accès facilitent les manœuvres des équipements et des véhicules de grande taille à l'intérieur du bâtiment.
En outre, ce site dispose de plusieurs espaces de bureaux, parfaits pour l'administration et les réunions. Ceux-ci sont meublés de manière moderne et bénéficient d'une lumière naturelle abondante, ce qui crée un environnement de travail agréable.
Le terrain entourant le bâtiment offre de nombreuses possibilités de stationnement et un espace supplémentaire pour l'entreposage à l'extérieur. La proximité des principales voies de communication fait de cette propriété un excellent choix pour les entreprises qui ont besoin d'un accès rapide aux routes commerciales régionales et internationales.
En résumé, cette propriété offre une base solide pour les entreprises en croissance dans un environnement dynamique et facile d'accès.
Disponibilités
-
OOSTERWEELSTEENWEG 57 ANTWERPEN
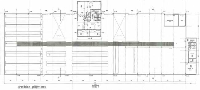
Étage Unité Type Surface Disponibilité Rez-de-chaussée Entrepôt 2556 m² à convenir Rez-de-chaussée Bureau 240 m² à convenir Étage 1 Bureau 240 m² à convenir Rez-de-chaussée Espace social + autre 180 m² à convenir Rez-de-chaussée Terrain 3000 m² à convenir Entrepôt
Rez-de-chaussée2556 m²Rez-de-chaussée Entrepôt 2556 m² à convenir Bureau
Rez-de-chaussée240 m²Rez-de-chaussée Bureau 240 m² à convenir Bureau
Étage 1240 m²Étage 1 Bureau 240 m² à convenir Espace social + autre
Rez-de-chaussée180 m²Rez-de-chaussée Espace social + autre 180 m² à convenir Terrain
Rez-de-chaussée3000 m²Rez-de-chaussée Terrain 3000 m² à convenir
Photos
Emplacement
Biens similaires
nouveau
