Bureau à louer in 1000 BRUSSEL

Description

ESPACE JACQMOTTE:

Ancien site du torréfacteur Jacqmotte datant des années 1828, ayant été rénové par les célèbres architectes Michel et Laurent Jaspers pour abriter de luxueux appartements, des bureaux ainsi que quelques espaces retails.

Le site s'articule autour d'un jardin interne et propose des espaces de deux styles différents.

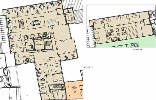
Le Loft: +/- 1.600m² sont disponibles et sont répartis sur les 3ème et 4ème étages reliés par un escalier interne.

En plein coeur des Marolles, le site est également facilement accessible depuis le Palais de Justice de Bruxelles, grâce à l'ascenseur extérieur qui relie la Place Poelaert à la rue Haute.

Ce n'est pas ce que vous cherchez ?

Contactez-nous immédiatement pour recevoir une sélection personnalisée: 02/511.05.60 – office@ceusters.be

Disponibilités

  • LOFT

    Étage Unité Type Surface Disponibilité
    Étage 3 +3 & +4 (splitsbaar) Bureau 1580 m² Immédiatement

    Bureau

    Étage 3
    1580 m²
    Étage 3 +3 & +4 (splitsbaar) Bureau 1580 m² Immédiatement
  • ALL

    Étage Unité Type Surface Disponibilité
    Rez-de-chaussée Parkings intérieurs 10 pl Immédiatement
    Étage -1 Archives 233 m² Immédiatement

    Parkings intérieurs

    Rez-de-chaussée
    10 pl
    Rez-de-chaussée Parkings intérieurs 10 pl Immédiatement

    Archives

    Étage -1
    233 m²
    Étage -1 Archives 233 m² Immédiatement

Emplacement

Biens similaires

bureau à louer

bureau

Rue de la Régence 52, 1000 BRUSSEL

à LOUER —à partir de 510 m² jusqu’à 8908 m²

Meer info
bureau à louer

bureau

Rue Joseph Stevens 7, 1000 BRUSSEL

à LOUER —à partir de 120 m² jusqu’à 1986 m²

Meer info
bureau à louer

bureau

Rue de l'Hôpital 31, 1000 BRUSSEL

à LOUER —à partir de 1243 m² jusqu’à 14736 m²

Meer info