Description
TRONE 60:
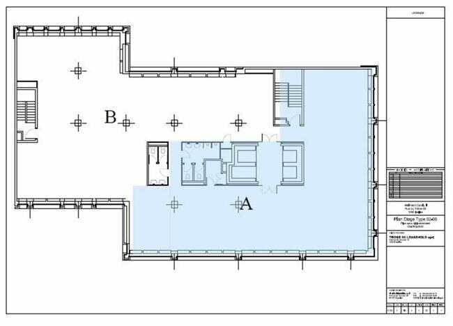
This building offers a prime office location in the heart of the Central Business District of Brussels. The property occupies a corner site at a slightly higher elevation to the Square de Meeus and benefits from excellent visibility.
Office available at first floor: 331sqm
Contact immediately our CEUSTERS Office Team for more information, at 02/511.05.60-
Availabilities
-
TROON/ TRÔNE 60
Floor Unit Type floor area Availability Floor 1 Office 331 m² Immediately Floor -1 1/84m² Indoor parking 8 pl Immediately Floor -1 Archive 71 m² Immediately Office
Floor 1331 m²Floor 1 Office 331 m² Immediately Indoor parking
Floor -18 plFloor -1 1/84m² Indoor parking 8 pl Immediately Archive
Floor -171 m²Floor -1 Archive 71 m² Immediately
